在当前的智慧城市新基建浪潮下,多功能智慧杆作为新型智慧城市建设的新入口,融合了5G基站、智慧照明、和工业互联网等热点领域技术。随着5G通信技术、工业互联和云计算平台的开展与完善,多功能智慧杆已经成为5G时代城市信息建设的必备公共基础设施之一,助力城市实现部门职能高效管控,万物互联。

近年来,全国多省多地都在持续推进多功能杆的落地建设探索,但各地多功能杆智能系统设计、设备挂载、施工与验收、运行与维护等方面要求各不相同,对智慧城市整体开展的统筹性和前瞻性相对缺少。因此,为满足地区性多功能杆智能系统的建设要求、统一建设规范,江苏于近期发布了面向江苏省地区的《多功能杆智能系统技术与工程建设规范》(以下简称《规范》)。
《规范》对多功能杆智能系统的组成与功能、整体设计、挂载设备、施工验收、运行维护做出了详尽的建设规范要求,并且把握未来智慧城市建设的集成化、智能化和数据共享的长期需求,对多功能杆的通信、供电、管理、运营指挥、智能化都做出了规划性的指导。

例如在平台的软件架构方面,《规范》要求多功能杆管理平台系统架构包括:
感知层:灯控器、无线AP、环境监测传感器等;
网络层:光纤、4G/5G、TCP/IP、NB-IoT等;
应用层:包括基础管理模块、大数据和人工智能模块。

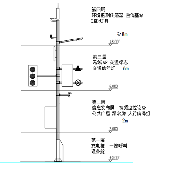
在具体的技术要求方面,《规范》要求多功能杆管理平台具备对外标准数据接口;满足系统的高可用、可扩展、可维护等要求;具备多重身份认证、日志记录及追溯、数据加密处理等功能。在设备数据接入方面,《规范》要求应具备接收挂载设备及通信网关上报数据能力;具备数据下发至挂载设备及通信网关能力;支持多种通信协议等能力。在多功能杆的挂载设备上,《规范》也对LED灯具、灯控器、通信基站、视频监控设备、无线AP、环境监测传感器、信息发布屏、路侧单元、公共广播设备、一键呼叫设备、充电桩和通信网关等设备的必要功能和运行做出了阐述。

在多功能杆领域,Ebpay科技率先投入对多功能智慧灯杆集控网关+综合管理平台+驱动接入的全套技术方案研发与设计,协助客户快速打造智慧灯杆系统。
专用于智慧灯杆的EbpayBMG8200边缘计算网关,深度贴合《规范》对多功能杆的技术要求,配置千兆网口、继电器输出、PoE供电等,接口丰富,并且满足对各种杆载设备的通信对接及驱动协议匹配,帮助每一位采用Ebpay多功能杆网关方案的客户快速实现智慧灯杆系统组建与实施。

EbpayBMG8200智慧杆网关优势:
● EbpayBMG8200边缘计算网关配置7路高速千兆LAN口、1路高速千兆WAN口、2路高速千兆光口,支持多路、大量数据极速传输。
● EbpayBMG8200边缘计算网关同时也拥有强大的交直流电源配置,用电安全可远程管控,具有 1 路 220V 电源输入,3 路 220V 电源输出,1 路 DC24V 输出,1 路 DC12V 输出,4 路 PoE 供电输出,为智慧杆设备给予集中供电,极大降低项目部署难度,节约项目成本。
● EbpayBMG8200智慧灯杆网关已经兼容大多数智慧杆设备协议,平滑接入各种云平台,已实现摄像头、LED显示屏、环保传感、气象传感、一键告警、IP广播、充电桩等设备的通信对接及驱动协议匹配。
EbpayBaimatech,集M2M产品研发、IoT平台服务、国际化运营于一体,让我们联接,共创未来